Casa de dos plantas con pileta y parque en Barrio Costa Azul
Propiedad ubicada en el tranquilo barrio Costa Azul Norte, con…
USD $320.000
Venta
Consultar precio
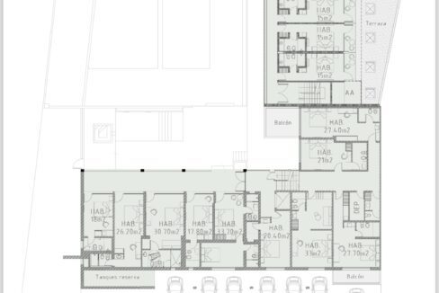
HOTEL de gran categoría, con maravillosa vista al lago y toda la ciudad de Villa Carlos Paz. Esta ubicado en barrio Villa del Lago, a solo 2 minutos del centro, con un entorno residencial y fácil acceso desde la ruta.
De destaca principalmente por las vistas desde prácticamente todas sus habitaciones y espacios, y por la modernidad y gran categoría de se construcción y amoblamiento.
Posee una moderna recepción, un salón comedor que se vincula con una magnifica terraza donde se aprecian las mejores vistas.
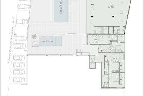
Tiene además, un salón de convenciones/reuniones de aprox 350 m2 con una cocina totalmente equipada.
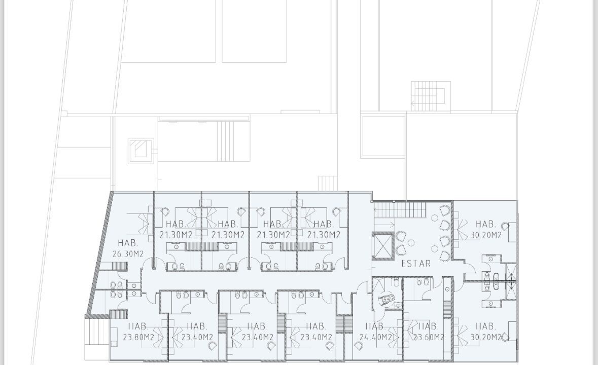
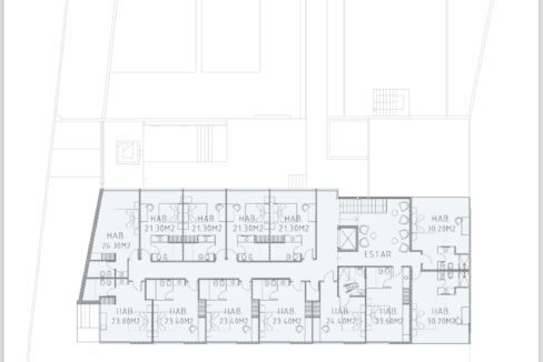
Son 22 habitaciones dobles con baño privado, y 2 habitaciones cuádruples. Capacidad total para entre 50 y 62 huéspedes. Tiene un proyecto para construir una planta mas, quedando así con 36 habitaciones en total.
Cuenta con 2 piscinas, siendo una de ellas climatizada.
Cocheras en subsuelo.
Planta de tratamiento de aguas servidas.
Propiedad ubicada en el tranquilo barrio Costa Azul Norte, con…
USD $320.000
Ubicado a una cuadra y media de la peatonal, este…
USD $175.000 $198.000 USD
MATRICULAS PROFESIONALES:
CPI 0246 CPI 4356
Corredores Inmobiliario
Carlos Alberto Paladino y Andres Paladino
Desde 1967 en Villa Carlos Paz.